高品質設備と暮らしやすい間取り設計 | 企画型注文住宅ジャストピアハウス | 長野 | 月々3万円台からの家づくり

高品質設備と
暮らしやすい
間取り設計

「ローコスト」が
「ロースペック」とは限らない。

  1. TOP
  2. 高品質設備と暮らしやすい間取り設計

毎日使うものだから、
安心の高品質設備
暮らしやすい間取り設計

私たちがローコスト住宅をお届けするのは、
「建ててから」のお客様の生活を豊かに楽しんでいただきたいという想いがあるから。
だからこそ、住んだその日から快適な暮らしを送ることができる、確かなスペックの設備を標準装備としました
機能性とデザインに配慮した高品質仕様で、皆様の新生活をサポートします。

ダイニング

家族の憩いの場のダイニングは
自然とコミュニケーションが生まれるような
工夫と
お気に入りのインテリアを。

キッチン

家族の“おいしい”のために使い勝手に
優れたキッチンを標準装備。

日々の食事を通じて、家族の健康も守っていく場所だから、
キッチンは使い勝手と衛生面に配慮。収納力とお手入れの
しやすさにこだわった充実仕様です。

■人造大理石トップ ■食器洗い乾燥機 
■IH or ガスコンロ
■シロッコファンフード同時給排タイプ

バスルーム

快適さと省エネ性能で差のつく浴室、
高品質な洗面化粧台。

省エネ性とお掃除のしやすさに配慮した浴室は、どんな
季節でも快適な入浴を実現。洗面化粧台は収納の多さが
うれしい三面鏡タイプを採用しました。

■ほっカラリ床 ■魔法びん浴槽 
■エアインシャワー

リビングスペース

理想のライフスタイルを彩る
暮らしの環境。

ついつい荷物が増えてしまった時でも安心のお部屋の大収納や
おしゃれなウォークインクローゼット、リラックスな空気を演出するベッドルーム。
お子様のためのキッズルームなど、
なによりも“暮らしやすい”間取りと設備をご提案いたします。

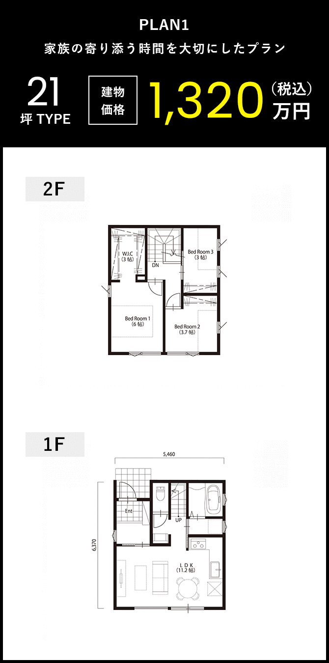
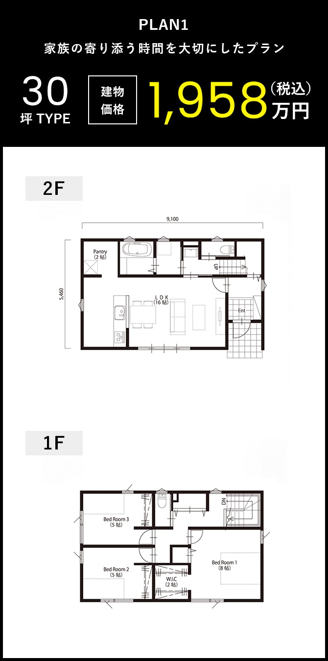
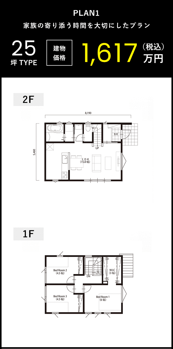
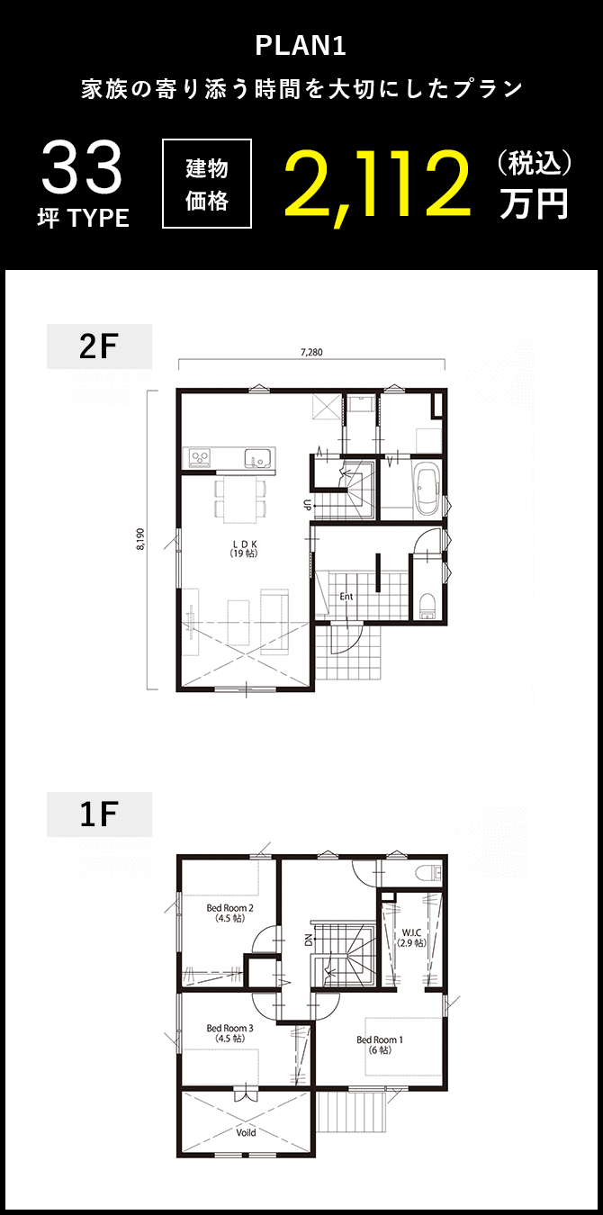
Room Plan

面積タイプ別 間取りプラン

「親子がいっしょに過ごす時間を大切にしたい」
「一人ひとりのプライベートを大事にしたい」
「とことん収納にこだわりたい」

それぞれのご家族にとって、住まいに求める想像はさまざま。
その一つ一つの想いに少しでも近づけるため、私たちは間取りのバリエーションを豊富にご用意。
コストを抑えながら夢を叶えたい、そんな理想を実現します。

21

25

28

30

33

36

  • PLAN0 PLAN01
  • PLAN02 PLAN02
  • PLAN03 PLAN03
  • PLAN04 PLAN04
  • PLAN05 PLAN05
  • PLAN06 PLAN06

※掲載の間取り図は各面積タイプの代表的な例です。
他にも多数プランをご用意していますので、
お気軽にお問い合わせください。